|
 - Ansicht Nord
 - Ansicht Süd
 - Ansicht Ost
 - Ansicht West
 - Haus 13 – 5. Obergeschoss/Staffelgeschoss: Mietfläche nach GIF ca. 725 m², teilbar ab ca. 319 m²
Haus 14 – 5. Obergeschoss/Staffelgeschoss: Mietfläche nach GIF ca. 634 m², teilbar ab ca. 297 m²
 - Haus 12 – 4. Obergeschoss/Staffelgeschoss: Mietfläche nach GIF ca. 501 m², teilbar ab ca. 214 m²
Haus 13 – 4. Obergeschoss: Mietfläche nach GIF ca. 910 m², teilbar ab ca. 422 m² Haus 14 – 4. Obergeschoss: Mietfläche nach GIF ca. 967 m², teilbar ab ca. 371 m²
 - Haus 12 – 3. Obergeschoss: Mietfläche nach GIF ca. 665 m², teilbar ab ca. 276 m²
Haus 13 – 3. Obergeschoss: Mietfläche nach GIF ca. 910 m², teilbar ab ca. 422 m² Haus 14 – 3. Obergeschoss: Mietfläche nach GIF ca. 967 m², teilbar ab ca. 371 m²
 - Haus 12 – 2. Obergeschoss: Mietfläche nach GIF ca. 665 m², teilbar ab ca. 276 m²
Haus 13 – 2. Obergeschoss: Mietfläche nach GIF ca. 992 m², teilbar ab ca. 474 m² Haus 14 – 2. Obergeschoss: Mietfläche nach GIF ca. 967 m², teilbar ab ca. 371 m²
 - Haus 12 – 1. Obergeschoss: Mietfläche nach GIF ca. 760 m², teilbar ab ca. 306 m²
Haus 13 – 1. Obergeschoss: Mietfläche nach GIF ca. 1.055 m², teilbar ab ca. 523 m² Haus 14 – 1.-4. Obergeschoss: Mietfläche nach GIF ca. 967 m², teilbar ab ca. 371 m²
 - Haus 12 – Erdgeschoss: Mietfläche nach GIF ca. 878 m², teilbar ab ca. 352 m²
Haus 13 – Erdgeschoss: Mietfläche nach GIF ca. 1.049 m², teilbar ab ca. 520 m² Haus 14 – Erdgeschoss: Mietfläche nach GIF ca. 1.107 m², teilbar ab ca. 426 m²
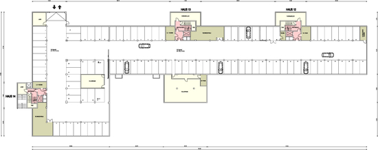
 - Haus 12, 13, 14 - Untergeschoss/Tiefgarage: 93 Stellplätze in Tiefgarage, außerdem zahlreiche Außenstellplätze für PKW und Fahrräder
|
|